全てを手にいれたような、開放的空間。
ラグジュアリーとか、ハイクラスとか、そんな言葉で表現しきれないこだわりが感じられたんです。
クリエイター三浦大地氏が空間プロデュースを手がけた住まいです。
部屋の仕切りをなくした 「壁のない部屋」 がコンセプト。
お部屋でのリラックス感と高揚感を大事にしたい想いが詰まっています。
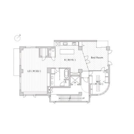
ワンフロアに一住戸の特別感。100㎡超えの空間は全てつながっていて、無駄な仕切りがありません。これ以上ないくらいの開放感はここが日本であることを忘れてしまいそう。
毎日暮らす部屋は、リラックスできながらもテンションが高くなるポイントがないとつまらない。
だから、ところどころにこだわりがあるんです。
無垢材のフローリング・寝室のヘリンボーン。
映画に出てきそうなウォークインクローゼット。
寝室を分ける黒フレーム&スケルトンのパーテーション。
キッチンの大理石カウンター。
ドアノブやシャワーヘッドなどはゴールドで統一。
全てにおいて感動していただける造りでまさに夢のような空間でした。
【2F】
住居・SOHO・事務所可能です。
広い空間と圧倒的な天井高はオフィス向きかもしれません。
【3F】
住居・SOHO可能です。
2Fに比べると天井は高くないので、
落ち着いた空間と言えます。
こちらは事務所NGです。
https://www.r-store.jp/chintai/room/188981
【4F】
住居のみ可能です。
このお部屋の魅力はルーフバルコニー!気持ちがいいです。
このスペースでペットを遊ばせてもOKですね。
https://www.r-store.jp/chintai/room/188982
全部屋バルコニーに桜の木が面しており、春にはとても綺麗に咲きます。
訪れたこの日は新緑の季節。森林浴気分になれました。
場所は代々木上原・代々木八幡のちょうど真ん中。
この特別な雰囲気を感じにきませんか?
【備考・注意点】
・犬のみ飼育可能(サイズ・頭数要相談)
・ペット飼育の場合、敷金1ヶ月積み増し
・保証会社利用必須(エルズサポート)
初回保証料 総賃料の50% 年間保証料12,000円(住居)
※事務所の場合 初回保証料:総賃料の100%
・住居利用の退去予告2ヶ月前(住居)
・事務所 SOHO利用の場合、敷金積み増し1ヶ月(償却1ヶ月)/事務所は退去予告3ヶ月前









































