海まで自転車で10分!
ホタルのいる小川の近く。
【乗換なし 品川まで47分・渋谷まで53分】
※普通列車での最短時間
自然が鎌倉らしい、緑を眺める戸建の募集がでました。
鎌倉の小町と聞くと、観光客でごった返す小町通りを思い浮かべる方が多いと思いますが、一本裏に入ると驚くほど静かな住宅地が広がっています。
緑が多く路地も多いこの一帯は、日々鎌倉らしさを感じられること間違えなし。
落ち着いた和モダンな外観の建物とは打って変わり、室内は床は檜、柱は杉、と無垢の木材をふんだんに使用したログハウスのような雰囲気です。
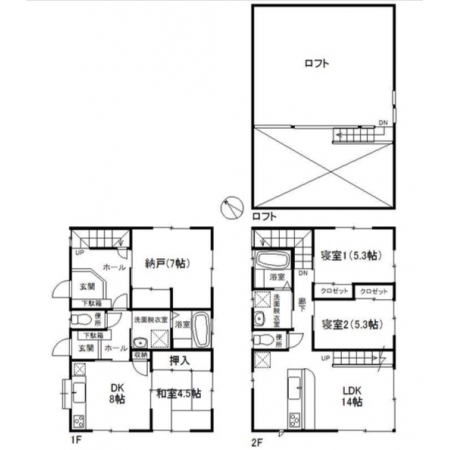
日当たりの良い2階にリビングを配置し、さらにロフトを設けることで天井の高い開放的な空間を。
窓から見える山の緑にほっとする静かな住宅地でありながらも、鎌倉駅までは徒歩12分。
古都鎌倉と言えども駅前には、スーパーも本屋さんも、100円均一もドラッグストアもあり、日々の生活には困りません。
都心へのアクセスも、横浜、渋谷、恵比寿、新宿、品川、東京、新橋、と多くの主要駅まで乗り換えなし。
時間帯によっては座って通勤可能ということもあり、たくさんの人が鎌倉に住宅を構えながらも都内通勤をしています。
これまでと変わらず都心で働きながらも、鎌倉でゆったりとした時を過ごす、そんな贅沢な暮らし始めてみませんか?
※物件前の旗竿地の半分はお隣さんの敷地です。
^^^^^^^^^^^^^^^^^^^^^^^
◼鎌倉のことをもっと知りたくなったよ、という方はこちら↓
鎌倉 TOWN NAVI
http://town.r-store.jp/archives/6421
◼『鎌倉・逗子から都内通勤のほんとのところ』が気になる方はこちら↓
http://r-blogs.jp/author/kamakura/4390/































