価格改定しました
できるものとできないものの最大公約数
マンションのリノベーションに比べると、一戸建てのリノベーションは自由度が高いと言われています。
それは確かにそう。
しかしながら、一戸建てであっても元々の造りによってはマンションと同様、リノベーションにも制限が生まれてしまうものもある。
木質パネル構造のこの一戸建ても例に漏れずそう。
壁や床を解体できずに、ドアや窓の高さが低い。
なので大幅に構成を変えるのではなく、既存の形からより部屋と部屋との繋がりを意識し、より現代っぽくアレンジ。
そうして生まれたのが今回の一戸建てです。
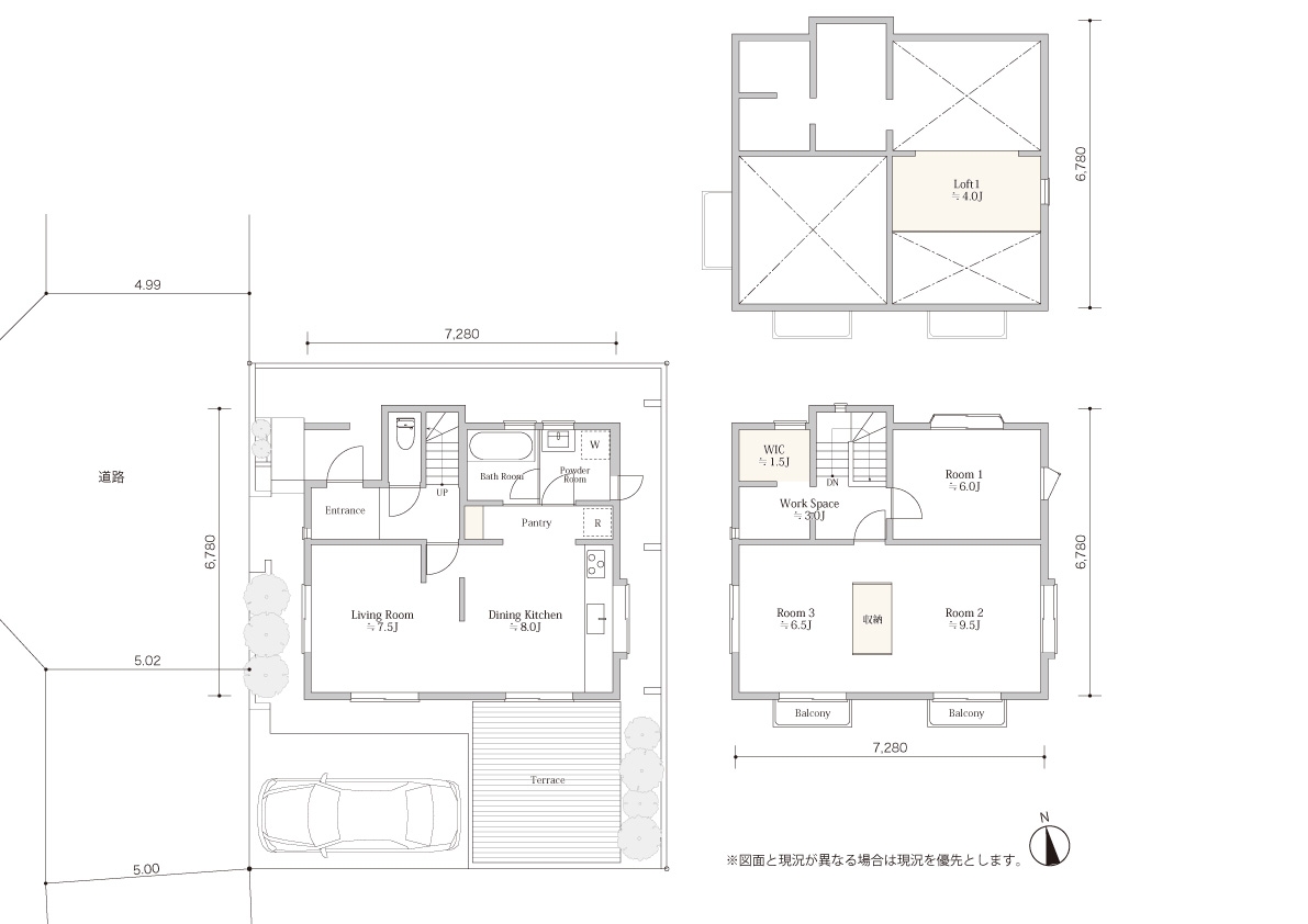
1階は躯体の柱を活かしながら、ひとつの空間に生まれ変わったリビングダイニングキッチン。
お庭のテラスとの繋がりを持たせたリビングからの景色ははっとします。
テーブルと椅子を置いて、ガーデンランチしたいですね。
(モデルルームそのままのイメージで暮らしたい)
鴨居のような棚が天井と窓の間にぐるりと設置されていることで、ディスプレイにも収納にも活かせるおもしろい空間が出来上がっている。
さらにリビングとダイニングの間の壁には、壊せないことを逆に活用しパネルを設置。
2階は3部屋とも取れる空間を、大胆に収納を残し大きな1つの空間に。
この天高と、斜め天井はシナ合板貼り、余白の多い造りにかえって興奮してしまう。
これで良いのだ、と思わせてくれる開放的な美しい空間が出来上がっている。
天高を活かしロフトも。
一戸建てのおもしろさを残しながら、自由に住まい手のニーズに合わせて変化していける家。
そのまま住まうのではなく、「どう住まおうか?」ぜひ考えながら新たなアイディアを生み出しながら楽しんで生活してもらえたら。
中古一戸建てのリノベーション、個人で物件を購入して一からリノベーションをするには不安(建物の劣化調査、耐震性、断熱性など・・・)もつきものですが、今回は信頼できるプロが物件選びから建物検査、リノベーション、耐震調査、断熱についても手を加えています。
ぜひ一度、ご検討ください。
■リノベーションのプロによる物件選定と、第三者機関の建物検査を実施
数ある中古住宅の中から、リノベーションのプロが次世代へ住み継ぐべき優良な既存建物(ストック)を選定して購入。さらに第三者機関による検査を経て、修繕、再生しています。
■耐震診断を実施、耐震基準適合証明書を発行
建築士や指定性能評価機関などの第三者機関により発行される、建物が耐震基準を満たしていることを証明する書類です。また、建物が地震の揺れにより倒壊するかを見極めるために耐震診断を行い、建物が大地震(震度6強~7)でも「一応倒壊しない」基準である構造評点1.0以上を確保しています。
■省エネ・断熱性能を向上
2020年から施行される省エネ基準レベルまで断熱性能を引き上げています。その上で、EU各国では既に義務化されている「家の燃費性能」を表示する証明書(エネルギーパス)を発行し、エネルギー消費量を見える化しています。
■既存住宅売買かし保険へ加入
検査と保証がセットになった保険制度に加入済み。お引渡し前に一定の検査を行い、不具合がないかの確認をしています。入居後に不具合(瑕疵)が発生した場合には保険対応が可能です。また、この保険に加入していることにより、既存住宅の住宅ローン控除の利用が可能です。(控除額 最大400万円・10年間 ※各種条件あり)
■地盤調査実施済、保証付
地盤調査を行い、土壌の安定性についても一定の診断を行っています。地盤要因による修復工事が発生した場合の保証がついています。(保証期間20年、保証金額2,000万円。)
■シロアリ調査・防蟻施工済、5年保証付
シロアリによる被害の有無を検査し、安全性を確認。改めて防蟻処理を施しています。5年間の保証が付帯しています。(保証金額500万円)
■「フラット35リノベ」適合予定
住宅金融支援機構の長期固定金利住宅ローン「フラット35」。本件はさらに、技術基準を満たした性能向上リフォームが行われた物件を購入する場合に、フラット35の金利を引き下げる制度「フラット35リノベ」にも適合しています。
■住宅履歴情報の蓄積、長期修繕計画の策定
(社)リノベーション協議会の基準にもとづき、検査・工事についての情報や長期修繕計画を住宅履歴として蓄積しています。今後の住まいの修繕計画の参考とすることはもちろん、住み替えや住み継ぎの際にも情報を提供することができます。
撮影:高橋菜生





























