エントランスには荒川のロードマップ

【掲載写真1001号室】自転車が2台まで収納できます

【掲載写真1001号室】開けた景色は開放的です*眺望は階により異なります

【掲載写真1001号室】陽当たり良好です

【掲載写真1001号室】風も抜けて気持ちいい

【掲載写真1001号室】収納には姿見付き

【掲載写真1001号室】玄関から続くフラットな床

【掲載写真1001号室】コンパクトなキッチンですね

【掲載写真1001号室】ぎゅっとまとまった水回り

【掲載写真1001号室】洗濯機置場上部には便利な収納

【掲載写真1001号室】浴室乾燥機付きですよ

【掲載写真1001号室】シンプルなトイレ

【掲載写真1001号室】一人暮らしには十分なサイズ

【掲載写真1001号室】風で飛ばされちゃうので洗濯物は浴室乾燥機がいいかも

【掲載写真1001号室】二重窓なので音も静か

【掲載写真1001号室】角部屋の特権、共用部にも収納できそう

24h受取可能な宅配ボックス

1階でメンテナンスもできます

建物前は車通りの多い道路です

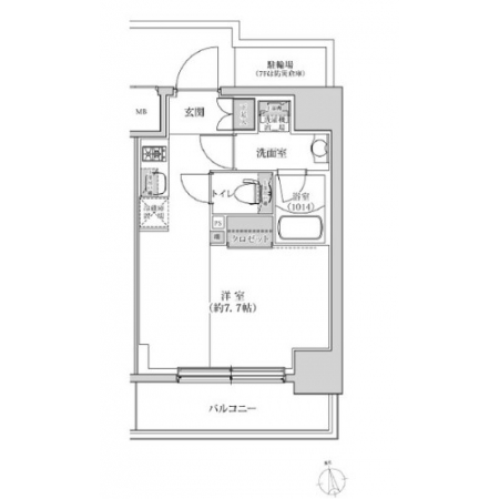
間取り

南砂町 ARAKAWA BIKE BASE 201号室

家賃 96,000 / 管理費 15,000

徒歩15分 25.19㎡ 1R 2019年03月

居住中(内覧不可)
11月22日(土)内覧開始予定
先行申込可・先行契約不可
フリーレント2ヶ月
敷金・礼金0
写真と文章は前回募集時のものですので、現況は内覧時にご確認ください。
※一部、床や壁紙の色味が異なる場合があります

自転車を愛する人へ

間取りは1人暮らし向けの1R。
ナチュラルで落ち着いた雰囲気のお部屋です。

なんといってもサイクリストへの気遣いがすごい。
お部屋には2台自転車を収納できちゃうサイクルラック付き。
自転車が通りやすいように玄関からお部屋まではフラットな床に。
もちろんエレベーターも自転車がらくらく入る仕様。

1階にはトレーニングルーム。
ここで愛車をメンテナンスすることができます。敷地内で洗車も可能。

近くに流れる荒川沿いを走り、駆け抜ける。風を感じて気持ちいい日常。
そんな自転車を愛するあなたの拠点にこのお部屋はぴったりだと思います。

私も自転車で少し遠くまで、行ってみたくなりました。

続きを読む

アールストアの
便利で楽しいスマホアプリ

いつもスマホでお部屋を探す方にオススメ!
いつでもどこでも、おしゃれなお部屋が簡単に探せます。