居住中(内覧不可)
11月7日(金)内覧開始予定
先行申込可・先行契約不可
写真と文章は前回募集時の別室(同間取り)のものですので、現況は内覧時にご確認ください。
東急スポーツオアシスが利用可能
身も心もリフレッシュルーム
仕事も生活も、身体も心も整え上手な、そんなあなたに住んでいただきたいお部屋です。
物件は新宿駅まで乗り換え無しの「笹塚駅」から徒歩6分。
都心までの通勤時間も短くストレスフリーな立地。
当物件にご入居いただくと、東急スポーツオアシスが利用可能なんです。
出勤前にサウナでひと汗、仕事帰りにジムでふた汗なんてこともできますね。
身体を整えたあと、この家に帰る姿を想像するだけでデキる男・女になった気分です。
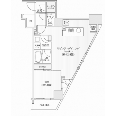
今回ご紹介するお部屋は、1LDK角部屋タイプ。
窓が沢山あり、自然光で心も癒やしてくれそうです。
大きなカウンターキッチンに立っていても空の青さを感じることができ、身体が喜ぶものしか作りたくなくなってしまう、そんな気持ちにさせてくれました。
リビング奥の洋室も、光が沢山差し込み明るいお部屋となっています。
2つの引き戸を開けてワンルーム+αのように使っていただいても良いかと思います。
ぜひご内覧、お待ちしております。































