写真と文章は前回募集時の別室(同間取り)のものですので、現況は内覧時にご確認ください
緑豊かで賑やかな代々木公園駅至近の物件です。
 
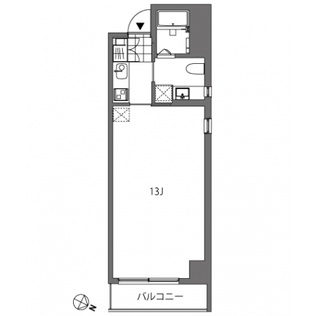
        今回ご紹介するお部屋は、シンプルなワンルームのお部屋です。
奥行きがあるお部屋のため家具で空間を区切ることで、用途によって空間を分けることもできます。
建材においては無垢フローリングと薄いクリーム色の壁が使われているため、やわらかい印象を受けることでしょう。
こちらの物件の計画地には、先代から営まれてきた古いお米屋さんがありました。
ビルの谷間にひっそりと佇み老朽化した木造平屋の店構えを、この地域に根ざした賃貸集合住宅へと生まれ変わらせるべく計画は始まりました。
建物は1階にテナント、2階にバレエスタジオ、3~4階を賃貸住宅とし、5~6階をオーナー住宅として建築されました。
賃貸住宅はワンフロアに2戸あり、ともにワンルーム形式の住宅となっています。
どちらも居住用途にも事務所用途にも使えるよう、ゆったりめの面積を確保していますが、特に南側にある301号室及び401号室はアイランドキッチンとなっており、居住においてもゆとりのある都会的生活が送れる空間となっています。
今回はふんだんに木材を使用し、床材にも無垢材を使用しています。
バルコニーの合成木材のルーバー手摺りは、通風性を確保しながらプライバシーを確保し、洗濯物も通りから見えることはありません。
代々木公園駅近くにはスーパーなど、生活に必要なお店も揃っている便利なエリアです。
また、代々木公園にもほど近い立地から、ジョギングやウォーキングなども手軽に楽しめ、自然と親しみながら都会的生活を送るには丁度良さそうです。
交通の便も良く、千代田線と小田急線を使えるので、新宿や霞ヶ関へも1本で行けます。
手軽なチェーン店の他にも、雑誌で掲載されているカフェやパン屋さんなど、おしゃれで美味しそうなお店もたくさんあるので、お気に入りのお店を見つけるのも楽しそうです。
ぜひ一度内覧にお越しください!         



















