閲覧履歴
お気に入り
検索条件
ログイン
徒歩6分 26.11㎡ 1DK 2024年12月
徒歩6分 26.6㎡ 1K 2024年12月
徒歩6分 26.6㎡ 1DK 2024年12月
徒歩6分 31.09㎡ 1DK 2024年12月
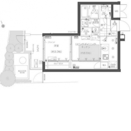
徒歩6分 30.68㎡ 1LDK 2024年12月
徒歩6分 30.8㎡ 1LDK 2024年12月