閲覧履歴
お気に入り
検索条件
ログイン
徒歩13分 102.39㎡ 3LDK 2014年02月
徒歩9分 84.48㎡ 1LDK 2005年03月
徒歩3分 26.12㎡ 1K 2014年09月
徒歩6分 53.62㎡ 1R 2007年12月
徒歩5分 35㎡ 1K 1973年10月
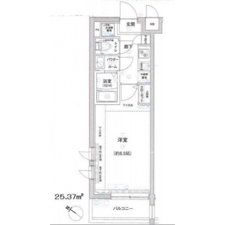
徒歩12分 25.11㎡ 1K 2019年03月
徒歩4分 38.36㎡ 1LDK 2004年09月
徒歩7分 40.14㎡ 2DK 2024年10月
徒歩4分 47.22㎡ 1R 1971年12月
徒歩10分 54.7㎡ 1LDK 1972年04月